0
Retour

Marseille (13010)
APARTEMENT T5 122m² EN DUPLEX DANS RESIDENCE AVEC PISCINE

  • à propos de ce
    bien

    TRES RARE A LA VENTE !

    Dans le quartier de la Timone, découvrez cet appartement, le coup de cœur assuré par ses atouts. Au calme absolu, sur l'arrière de la résidence, T5 de 122m² (Surface au sol totale : 127,50 m²) en duplex en rez de jardin et 1er étage d’une résidence intimiste avec piscine.

    Il se compose comme suit :

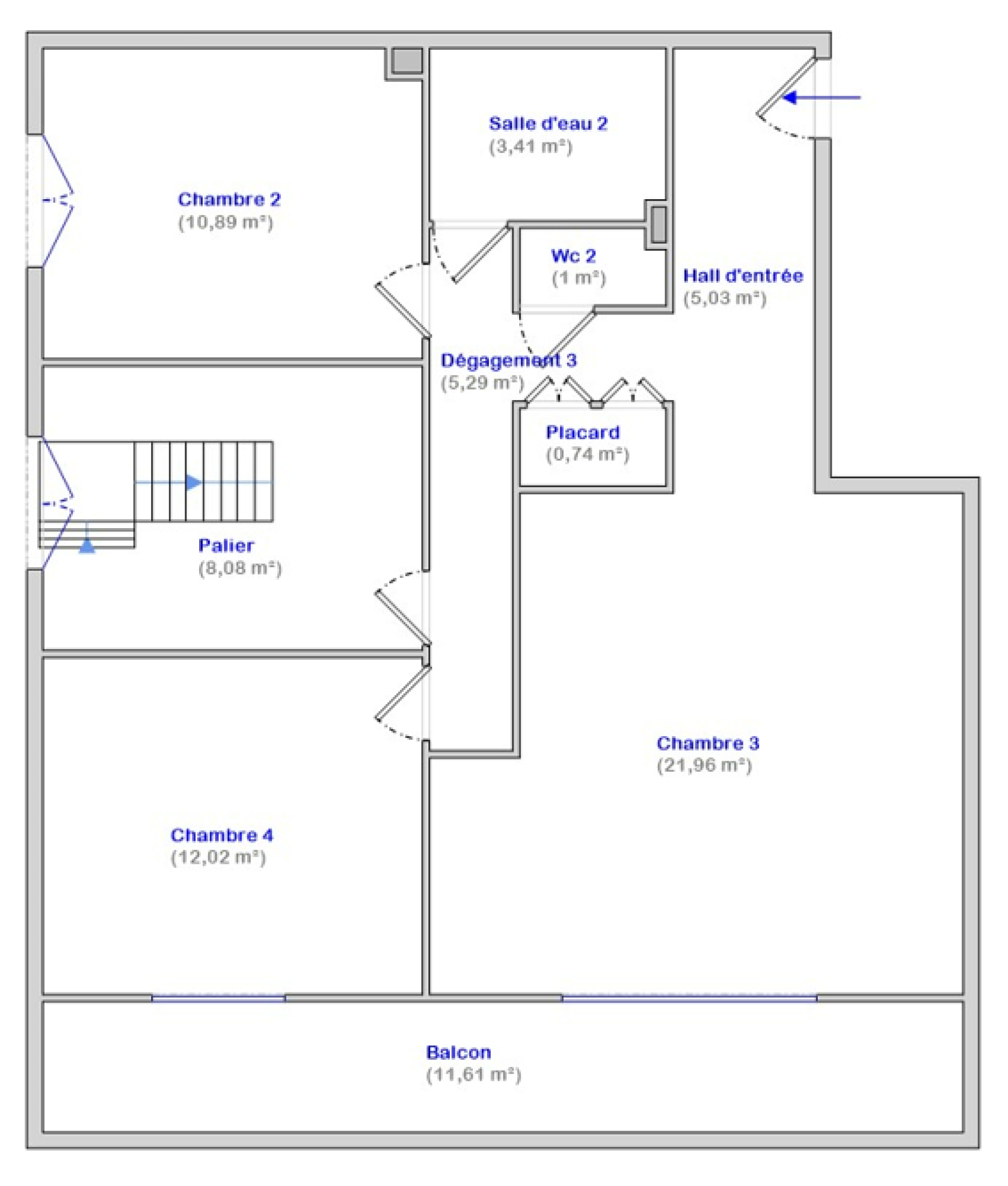
    Au rez de chaussée : une cuisine séparée de 10m² avec cellier et un séjour-salle à manger de 25m² qui donne sur une terrasse et son jardin en L de 70m² environ exposée Sud et Ouest. Une chambre de 9.5m² avec placard sur tout un pan de mur peut servir de bureau et une salle d’eau de 3.17m² et un WC indépendant facilitent l’usage sans devoir aller à l’étage.

    A l’étage : L’espace nuit dispose de trois chambres (10.9m², 12m² avec placard intégré et une chambre parentale de presque 22m² avec rangements, les deux dernières chambres donnant sur un balcon exposé Sud), une salle d’eau de 3.41m² et un WC indépendant.

    Le bien peut être séparé en deux appartements : un en bas avec la terrasse et le jardin et un en haut avec un balcon et un accès indépendant existant.

    L’ensemble de l’habitation est climatisé.

    Une grande piscine avec un espace solarium végétalisé en fait un endroit agréable.

    Un stationnement extérieur sécurisé complète le bien. L'accès au parking se fait par un portail électrique avec télécommande.

    La résidence est proche des accès autoroutes, des commerces et des écoles ce qui en fait un lieu familial idéal.  Le bus (arrêt à quelques mètres de la résidence) vous amène au métro de la Timone rapidement.

    Charges mensuelles (piscine, eau froide, entretien des espaces verts) : 195€

    Taxe foncière : 3 199€

    Les informations sur les risques auxquels ce bien est exposé sont disponibles sur le site Géorisques : www.georisques.gouv.fr

    Pour plus d'informations, contacter directement notre conseillère : Laëtitia LEADBETTER au 06 10 61 32 29.

    • Prix
      370 000 €
    • Code postal
      13010
    • Surface habitable (m²)
      122 m²
    • surface terrain
      70 m²
    • Surface loi Carrez (m²)
      122 m²
    • Nombre de chambre(s)
      4
    • Nombre de pièces
      5
    • Nombre de niveaux
      1
    • Ascenseur
      NON
    • Vue
      Sans vis à vis
    • Références
      82
  • Plus d'informations
    financières

    • Prix de vente
      370 000 €
    • Les honoraires d'agence seront intégralement à la charge du vendeur
       
    • Charges
      195 €
    • Taxe foncière annuelle
      3 199 €
  • Plus de
    détails

    • Nb de salle d'eau
      2
    • Cuisine
      Séparée
    • Type de cuisine
      Equipée
    • Mode de chauffage
      Climatisation
    • Type de chauffage
      Air pulsé
    • Format de chauffage
      Individuel
    • Interphone
      OUI
    • Balcon
      OUI
    • Terrasse
      OUI
    • Murs mitoyens
      2
    • Nombre de parking
      1
    • Exposition
      Sud-Ouest
    • Année de construction
      1977
    • Terrain arboré
      OUI
  • la
    copropriété

    • Copropriété
      OUI
    • nombre de lots
      8
    • Quote Part annuelle des charges
      2 336 €
    • statut du syndic
      pas de procédure en cours
  • Bilan
    énergétique

    DPE GES

    Montant estimé des dépenses annuelles d'énergie de ce logement pour un usage standard est compris entre 1 170 € et 1 640 € . 2021 étant l'année de référence des prix de l'énergie utilisés pour établir cette estimation.

Ce bien
m'intéresse

Nos outils