0
Retour

Marseille (13009)
Appartement T5 de 108m² avec VUE EXCEPTIONNELLE SUR LA MER, quartier REDON

  • à propos de ce
    bien

    Sur le secteur du Redon-Cabot, dans une résidence fermée, sécurisée, BLEY’S vous présente cet appartement traversant situé au 13ème étage avec ascenseurs d'un batiment du Super Rouvière, avec une vue exceptionnelle à 180° sur la rade de MARSEILLE.

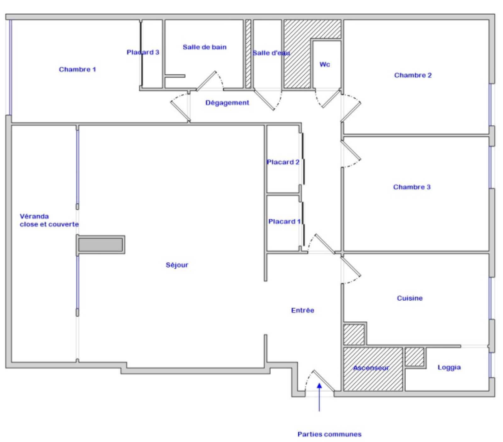
    Il est composé d’un grand espace de vie très lumineux de 30m², d'une cuisine séparée aménagée et équipée avec loggia, de 3 chambres (12m², 11m² et 11m²) avec rangements, d'une salle de bain, une salle d'eau et un wc séparé. Le parquet, de nombreux rangements et la climatisation rendent les lieux agréables à vivre.

    Une grande cave en sous-sol (11,44m²) vient compléter le bien.

    Le stationnement est libre dans la résidence. Un garage en sous-sol accessible par l’ascenseur de presque 17m² (grande hauteur) avec portail électrique est disponible en sus.

    Le Ravalement de façade est voté, payé et en cours de réalisation.

    Au sein même de la résidence, une école, de nombreux commerces (Pharmacie, boulangerie, supermarché, etc.) ainsi qu’un centre médical facilitent la vie en famille. A proximité immédiate, un minibus vous amène jusqu’à l’entrée de la résidence vers le centre commercial et les transports en communs (bus et bientôt Tram).

    Taxe foncière : 2 345€/an

    Charges mensuelles de copropriété : 370€ (entretien des parties communes et des espaces verts, concierge du bâtiment, sécurité de la résidence par gardiens, ascenseurs, eau froide, minibus)

    Les informations sur les risques auxquels ce bien est exposé sont disponibles sur le site Géorisques : www.georisques.gouv.fr

    Pour plus d'informations, contacter directement notre conseillère : Laëtitia LEADBETTER au 06 10 61 32 29.

    • Prix
      260 000 €
    • Code postal
      13009
    • Surface habitable (m²)
      108,38 m²
    • Surface loi Carrez (m²)
      96 m²
    • Nombre de chambre(s)
      3
    • Nombre de pièces
      4
    • Etage
      13
    • Ascenseur
      OUI
    • Vue
      Exceptionnelle
    • Références
      86
  • Plus d'informations
    financières

    • Prix de vente
      260 000 €
    • Les honoraires d'agence seront intégralement à la charge du vendeur
       
    • Charges
      370 €
    • Taxe foncière annuelle
      2 345 €
  • Plus de
    détails

    • Nb de salle de bains
      1
    • Nb de salle d'eau
      1
    • Cuisine
      Séparée
    • Type de cuisine
      Equipée
    • Mode de chauffage
      Electrique
    • Type de chauffage
      Convecteur
    • Format de chauffage
      Individuel
    • Interphone
      OUI
    • Balcon
      OUI
    • Murs mitoyens
      2
    • Nombre de garage
      1
    • Cave
      OUI
    • Surface cave (m²)
      11.44
    • Exposition
      Sud-Ouest
    • Année de construction
      1978
    • Quartier
      REDON
  • la
    copropriété

    • Copropriété
      OUI
    • Quote Part annuelle des charges
      4 444 €
    • plan de sauvegarde
      NON
    • statut du syndic
      pas de procédure en cours
  • Bilan
    énergétique

    DPE GES

    Montant estimé des dépenses annuelles d'énergie de ce logement pour un usage standard est compris entre 1 410 € et 1 970 € . 2021 étant l'année de référence des prix de l'énergie utilisés pour établir cette estimation.

Ce bien
m'intéresse

Nos outils