0
Retour

Marseille (13010)
Studio quartier La Timone 13010

  • à propos de ce
    bien

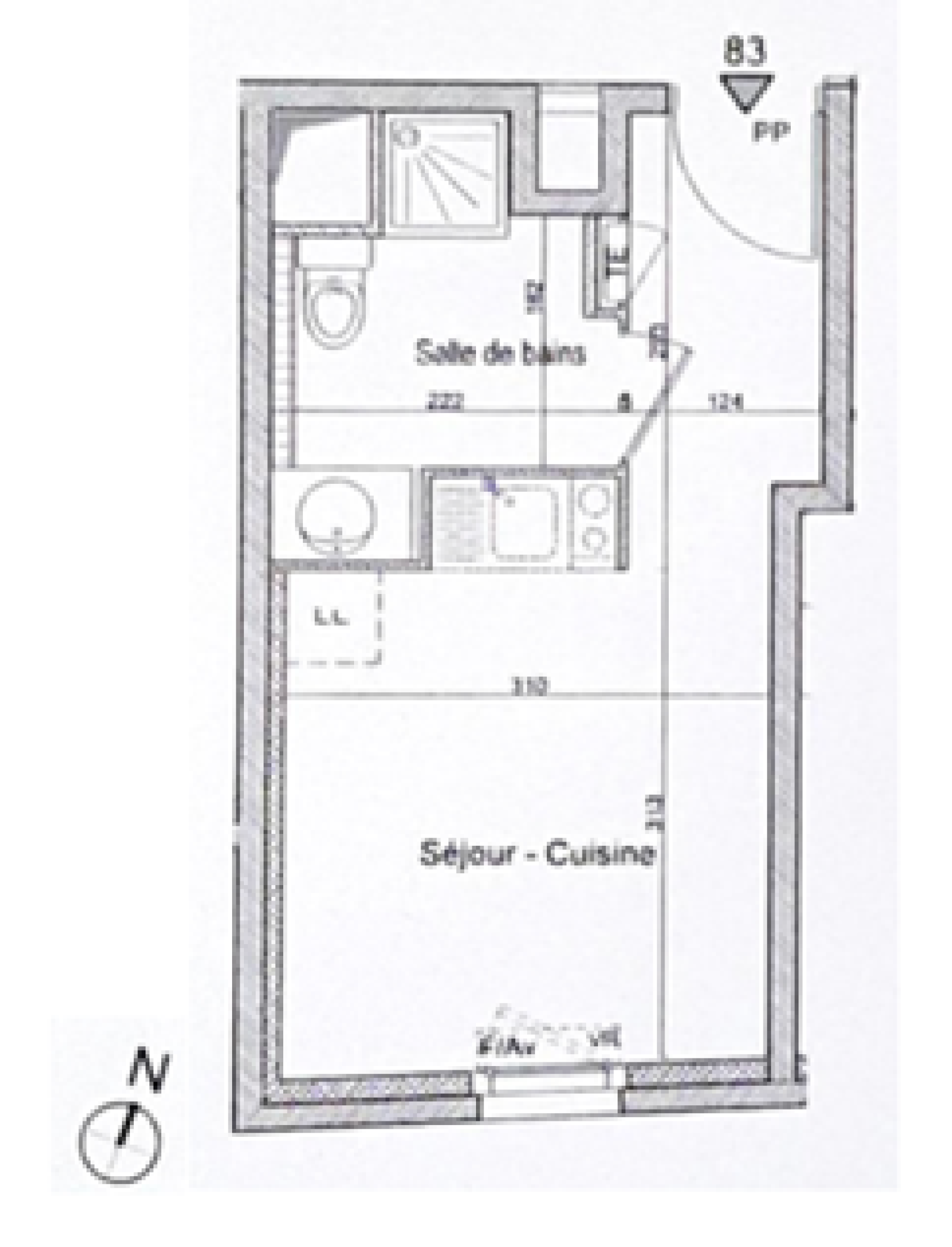
    IDEAL INVESTISSEUR avec un rendement de 6% (loyer marché 550€ HC) Situé dans une copropriété récente (2016) sécurisée (digicode, badge, interphone, caméras) du quartier de la Timone, découvrez ce studio de 18.53 m² Carrez, au 8ème et dernier étage avec vue dégagée.

    Exposé Sud, il est lumineux, au calme et sans vis à vis. Accessible aux personnes handicapées, il se compose d’une entrée de 3m², d'un espace de vie de 11m² avec kitchenette et d'une salle de douche avec W.C. Le bien est vendu avec un box en sous-sol.

    Vendu libre de toute occupation.

    Idéal investissement, vous apprécierez la situation du bien proche de toutes commodités : commerces, écoles supérieures (Faculté de médecine et dentaire de la Timone et écuries de médecine) à 8min à pied, bus devant la résidence et métro Timone (ligne 1) à 12min.

    Faible consommation énergétique grâce au double vitrage et à la production d’eau chaude sanitaire collective utilisant l’énergie du soleil et la chaleur de l’atmosphère.

    Taxe foncière : 691€ - Charges mensuelles (entretien des communs, ascenseur, Cable, eau chaude et froide) : 80€

    Pour plus d'informations, contacter directement notre conseillère : Laëtitia LEADBETTER au 06 10 61 32 29.

    • Prix
      106 000 €
    • Code postal
      13010
    • Surface habitable (m²)
      18,53 m²
    • Surface loi Carrez (m²)
      18,53 m²
    • Nombre de pièces
      1
    • Etage
      8
    • Ascenseur
      OUI
    • Vue
      Dégagée
    • Références
      64
  • Plus d'informations
    financières

    • Prix de vente
      106 000 €
    • Les honoraires d'agence seront intégralement à la charge du vendeur
       
    • Charges
      80 €
    • Taxe foncière annuelle
      691 €
  • Plus de
    détails

    • Nb de salle d'eau
      1
    • Cuisine
      Kitchenette
    • Type de cuisine
      SEMI-EQUIPEE
    • Interphone
      OUI
    • Murs mitoyens
      3
    • Nombre de garage
      1
    • Cave
      NON
    • Exposition
      Sud
    • Année de construction
      2016
  • la
    copropriété

    • Copropriété
      OUI
    • Quote Part annuelle des charges
      960 €
    • plan de sauvegarde
      NON
    • statut du syndic
      pas de procédure en cours
  • Bilan
    énergétique

    DPE GES

    Montant estimé des dépenses annuelles d'énergie de ce logement pour un usage standard est compris entre 80 € et 150 € . 2021 étant l'année de référence des prix de l'énergie utilisés pour établir cette estimation.

Ce bien
m'intéresse

Nos outils